HOUSE PLAN

Beryl

2

Cozy Cabin with Optional Garage

Specs

Features

  • Covered Deck
  • Fireplace (optional)
  • Garage (optional)
  • Loft
  • Master Ensuite
  • Vaulted Ceiling
  • Walk-in Pantry

Floorplans

Main Floor

1144 sq ft · 2 bed · 2 bath

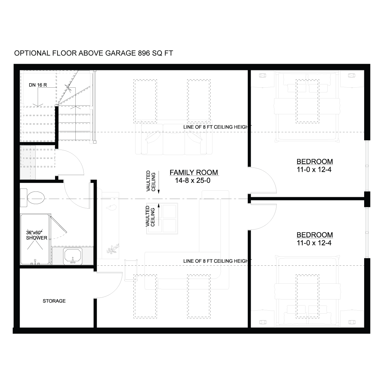
Second Floor (Optional)

896 sq ft · 2 bed · 1 bath

Sorry, we don’t have video for this home.

More from the Beryl Collection

Similar 1.5 Storey / Loft, Bungalow Homes

Looking for something custom?

We can modify any plan to better fit your family's needs!

Have Questions?